Unlocking History, Building Community, One Stone at a Time

At the heart of Viroqua's future lies our vision for a Viroqua Welcome Center. By restoring the historic WPA building, we commit to a sustainable legacy, embracing the importance of preserving our past. This project is not just about renovating a structure; it's about building a thriving community. With a focus on economic development, historic preservation, and community connectivity, we aspire to create a timeless space that stands as a testament to our shared heritage and the vibrant future we are building together.

The City of Viroqua has an outstanding opportunity to develop an information and visitor center with public restrooms in the heart of its downtown area, and community support is needed to make this project a reality. Here’s how the project came about and where it stands today:

In the fall of 2022, the City Council of Viroqua gave the Viroqua Historic Preservation Commission (VHPC) permission to research possibilities for the city’s bathhouse building, a historic landmark that was built during the mid-twentieth century by the Works Progress Administration (WPA), under Franklin D. Roosevelt. The VHPC hired Marc Zettler, a preservation architect, to inspect the building and write an evaluation. His evaluation stated, “After analyzing the building on site, it is my professional opinion that this building is in a condition that warrants rehabilitation rather than removal. The walls are structurally robust and, if maintained, can last for many more decades, possibly centuries. It would be a significant waste of embodied energy to remove the structure.”

How The Project Started

Architect's Rendering of VWC

Also in the fall of 2022, Aaron Van Loo, a student in Architectural Technology at Western Technical College, contacted the VHPC and made his capstone project, a plan for renovation of the WPA bathhouse building, available to the commission. Aaron’s project design, complete with floorplan and computer images, calls for renovation of the historic bathhouse into a four-season building.

The VHPC presented Marc Zettler’s evaluation and Aaron Van Loo presented his project design to the Viroqua City Council on Tuesday, November 22, 2022. The VHPC also laid out a way to pay for the renovation using a Community Development Investment (CDI) Grant funded by the Wisconsin Economic Development Corporation (WEDC). The Viroqua City Council gave the VHPC permission to apply for the CDI Grant, which is a one-to-one matching grant of up to $250,000. The City allocated $238,000 for the project—$200,000 in funding from Tid #6 and $38,500 previously budgeted for the bathhouse—to help meet the grant’s matching funds requirement.

The Viroqua Historic Preservation Commission (VHPC), with the approval of the City, then created a WPA Building Task Force to address the planning and fundraising needed to apply for the CDI Grant.

Christina Dollhausen and Karen Innis conducted surveys of community members to determine how the building could best serve the community. The results were that there was a need for accessible public restrooms, a visitor and community information center, and a space that could accommodate small public or private events.

On April 8, 2025, the Viroqua City Council approved the construction contract with Artisan Preservation, LLC, of La Crosse, Wisconsin, for the project.
Marc Zettler is the architect. Work began on May 19, 2025, with completion expected by May 2026.

Mortar Removal Ceremony
Mortar Removal Ceremony at the Groundbreaking                             May 22, 2025

The members of the WPA Bathhouse Task Force are: Christina Dolhausen - grant writer, community advocate
J
ean Driscoll – community advocate
Cyndy Hubbard – 6th Ward Viroqua Alderperson, Park & Rec Committee, VHPC Chair
Karen Innis – realtor, VHPC member
Randy Skinner –VHPC member, community advocate
Steve Willis – 9th Ward Viroqua Alderperson, Council Pres., Park & Rec Com. Chair
Aaron Aslin - former member, Interim Executive Director Viroqua Chamber

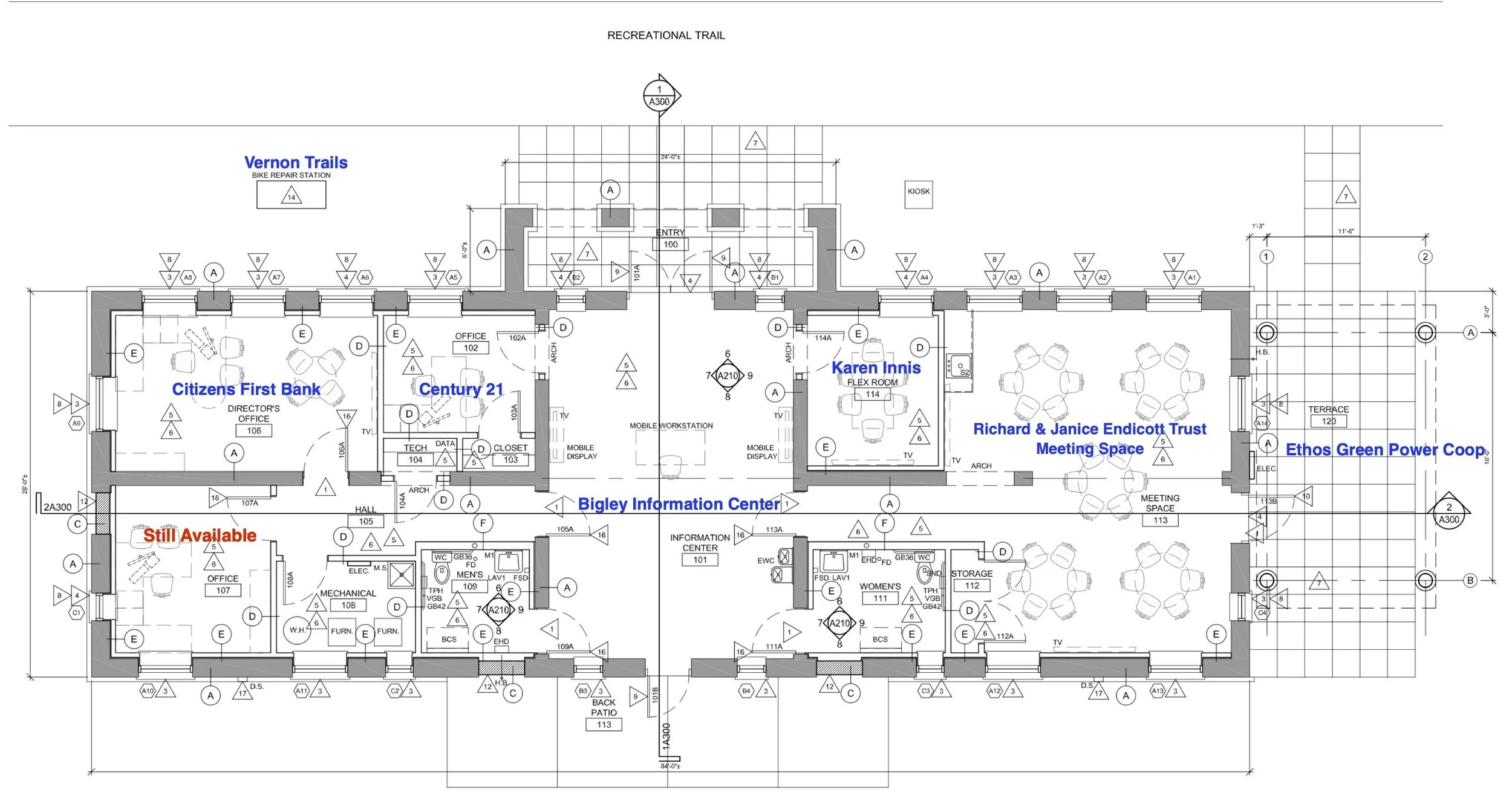
Floorplan with Naming Rights
Groundbreaking Ceremony- May 22, 2025
L to R: Aaron Aslin, Steve Willis, Christina Dolhausen, Karen Innis, Jean Driscoll, Cyndy Hubbard, Randy Skinner, Missy Hughes (WEDC), Dan Moen (Artisan Preservation), and Marc Zettler (Zettler Design Studio)
Viroqua Welcome Center Floorplan showing Naming Rights Purchased

HOW TO PLEDGE & DONATE

The Viroqua Area Foundation has agreed to serve as the fiduciary for the project.

Donations and pledges are tax-deductible to the full extent of the law.


You may
Donate Online or by mail to:

Viroqua Area Foundation
P.O. Box 262
Viroqua, WI 54665

Online Pledge Forms